__Erdgeschoss__
– heller, großzügiger Eingangsbereich
– Küche
– Wohnzimmer
– 2 Schlafzimmer
– Badezimmer mit Badewanne
– Abstellraum/HWR
– Kamin möglich
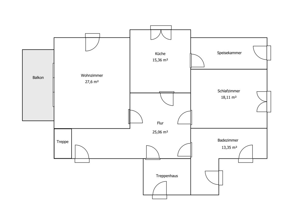
__Obergeschoss__
– großer Flur
– Wohnküche mit Einbauküche
– Speisekammer
– Schlafzimmer
– Wohnzimmer mit Balkon
– Badezimmer mit Dusche
-> jede Etage kann als eigenständige Wohneinheit genutzt werden
________________
– teilunterkellert
– Nebengelass mit Sommerküche, Werkstatt und Abstellräumen
– großer Garten mit Terrasse und Teich, Sandkasten und Schaukel
– Garage
-> Grundstück ist teilbar (Bauland)
– neue Türen
– doppelt isolierte Fenster mit Jalousien, Marmorfensterbänke
– Böden: Fliesen, Laminat, Linoleum, Textil
– 36er-Ziegel-Mauerwerk
– Dacheindeckung mit Tonziegeln, gedämmt (BJ 2012)
– Elektrik (erneuert)
– 3-Kammer-Grube (ca.8 m³)
– Gas-Heizung (BJ 2008)